Details
Product condition
new
Lloji i njoftimit
Shitet
Tipologjia e apartamentit
1+1
Sipërfaqe në m2
78
Numri i tualeteve
1
Garazh i përfshirë në cmim
Jo
Ashensor
Jo
Statusi i Apartamentit
Pa hipotekë
Gjendja e Apartamentit
I pamobiluar
Adresa
Spitali i Kafsheve
Kati i apartamentit
1
Description
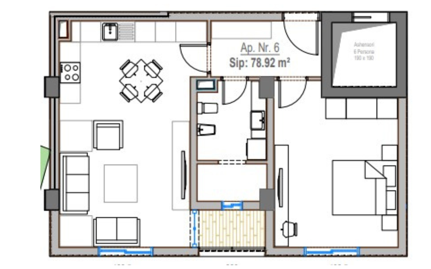
Apartament në shitje-Tiranë Shitet apartament në një prej zonave më të qeta të kryeqytetit, tek Liqeni i Thatë, pranë Spitalit të Kafshëve. Zona në të cilën ndodhet i krijon të gjitha facilitetet e nevojshme për një jetesë komode si: farmaci, kopshte/shkolla, markete/supermarkete, bar-restorante, etj. Apartamenti ndodhet në kompleksin më të ri me 3 godina banimi dhe shërbimi 4 kate me një kat parkimi nëntokë. Apartamenti ka sipërfaqe totale 78.74m2, sipërfaqe të brendshme 68.74m2 dhe sipërfaqe të përbashkët 10.18m2. Hapësira e brendshme e apartamentit është e organizuar në 1 dhomë gjumi, ambjent ndenje+gatimi+ngrënie, tualet dhe ballkon. Ndodhet në katin e parë banim të një godine në ndërtim e sipër. Ka orientim nga Jugu. Për më shumë informacion ose një vizitë në pronë mos hezitoni të na kontaktoni!
Apartament ne shitje
13 May
AD ID: 3276