Details
Lloji i njoftimit
Shitet
Tipologjia e nderteses
2+1
Sipërfaqe banimi në m2
108
Sipërfaqe truall në m2
143
Numri i tualeteve
2
Garazh / Hapsire parkimi
Jo
Statusi i Objektit
Pa hipotekë
Gjendja
I pamobiluar
Adresa
Golem
Katet e Objektit
2
Description
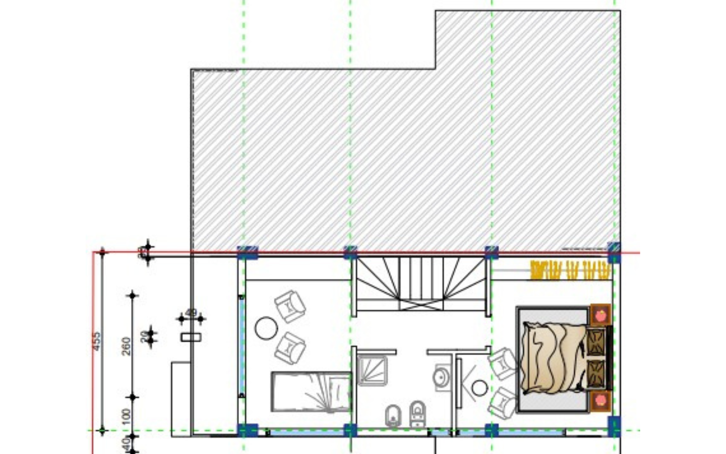
Vilë në shitje-Golem Shitet vilë në një ndër zonat më të kërkuara dhe preferuara për gjatë sezonit veror dhe jo vetëm, në Golem. Zona në të cilën ndodhet i plotëson të gjitha facilitetet e nevojshme për një jetesë sa më komode. Vila ndodhet 2 minuta larg nga deti. Vila është 2 katëshe ka sipërfaqe trualli 143.5m2, sipërfaqe totale ndërtimi 108.5m2 ku sipërfaqja e katit përdhe është 49.5m2 dhe sipërfaqja e katit të parë është 59m2. Vila ka sipërfaqe tarrace 59m2 dhe sipërfaqe të përbashkët të rrugës së brendshme 1.53m2. Hapësira e brendshme e katit përdhe është e organizuar në ambjent ndenje+gatimi+ngrënie dhe tualet. Ndërsa kati i parë ka 2 dhoma gjumi, tualet dhe 2 ballkone. Për më shumë informacion ose një vizitë në pronë mos hezitoni të na kontaktoni!
Vile ne shitje
15 Dec
AD ID: 3236