Details
Lloji i njoftimit
Shitet
Tipologjia e nderteses
2+1
Sipërfaqe banimi në m2
123
Sipërfaqe truall në m2
176
Numri i tualeteve
2
Garazh / Hapsire parkimi
Jo
Statusi i Objektit
Pa hipotekë
Gjendja
I pamobiluar
Adresa
Golem
Katet e Objektit
2
Description
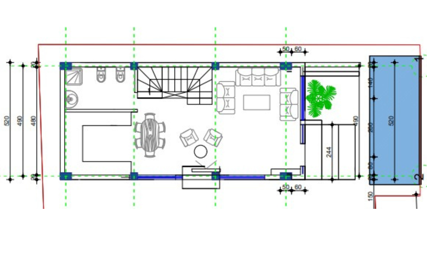
Vilë në shitje-Golem Shitet vilë në një ndër zonat më të kërkuara dhe preferuara për gjatë sezonit veror dhe jo vetëm, në Golem. Zona në të cilën ndodhet i plotëson të gjitha facilitetet e nevojshme për një jetesë sa më komode. Vila ndodhet 2 minuta larg nga deti. Vila është 2 katëshe ka sipërfaqe trualli 176.3m2, sipërfaqe totale ndërtimi 123.7m2 ku sipërfaqja e katit përdhe është 56.7m2 dhe sipërfaqja e katit të parë është 67m2. Vila ka sipërfaqe tarrace 67m2, sipërfaqe të përbashkët të rrugës së brendshme 1.53m2 dhe sipërfaqe pishine 12.9m2. Hapësira e brendshme e katit përdhe është e organizuar në ambjent ndenje+gatimi+ngrënie, tualet dhe pishinë. Ndërsa kati i parë ka 2 dhoma gjumi, tualet dhe 2 ballkone. Për më shumë informacion ose një vizitë në pronë mos hezitoni të na kontaktoni!
Vile ne shitje
15 Dec
AD ID: 3237